You’ve decided you want to build a DIY greenhouse? Well, in that case, you’re in luck. I’ve got 95 different concepts and greenhouse plans for you to work from. Some are very rudimentary, others quite refined. A few will get you your DIY greenhouse cheap and easily. And others will give you a large greenhouse that’s worthy of a commercial farm.
From mini greenhouses to hydrofarming havens, tech-savvy setups that will care for your plants for you to cling film-wrapped frameworks, we have something here that will suit every experience level or need. So let’s dive in headfirst and find you the perfect plans for a DIY greenhouse that you’ll love to use!

Have you, like many others, switched over to playing music on your devices? Got an old stack of CD cases that you hate to just throw away? You can make them into a miniature greenhouse. With this step-by-step tutorial, you learn exactly how to turn your trash into a garden treasure.
| Size | 3.75’ x 2.5’ |
| Type | Hard Wall, Plastic Frame |
| Cost | $ |
| Difficulty | Beginner to Intermediate |
See Plans >

While it won’t win any awards for beauty, functionally this greenhouse is a very effective structure. The plywood lower panels provide warmth and wind protection at the base of the structure. Wooden upper framework anchors thick polyethylene sheeting in place.
| Size | 8’ x 8’ |
| Type | Soft/Hard Wall, Wood Frame |
| Cost | $$ |
| Difficulty | Beginner |
See Plans >

This simple hoop house design is great for tomatoes, peppers, or other similar plants. Tall enough to provide protection from rain or wind, its PVC design is easy to assemble in an afternoon. Use poly sheeting to provide greenhouse protection. In the summer you can swap that out for shade cloth!
| Size | 8’ x 3’ |
| Type | Soft Wall, PVC Frame |
| Cost | $ |
| Difficulty | Beginner |
See Plans >

Limited on space? Not to worry. Pick a south-facing wall and attach this folding greenhouse to it. Built in a modified lean-to style, it drops down to protect your plants from the elements. When not in use, it neatly folds back up against the wall and out of the way.
| Size | 8.25’ x 5’ |
| Type | Soft Wall, PVC Frame |
| Cost | $ |
| Difficulty | Beginner |
See Plans >

If your soda bottles, gallon water bottles or juice bottles are stacking up in the recycle bin, reuse them! While technically not a true greenhouse, a cloche acts much in the same fashion to provide protection for fragile plants. This DIY design takes mere minutes to prepare, and will easily withstand the winter chill while protecting young growth.
| Size | Less than 1’ |
| Type | Semi-Rigid Wall, Plastic Frame |
| Cost | $ |
| Difficulty | Beginner |
See Plans >

If you only need something for a short period of time and don’t want to invest much in it, this hoop-style greenhouse is for you. Using no more than flexible tree branches and poly sheeting, you can have a greenhouse protecting your plants in no time.
| Size | 4’ x 6’ |
| Type | Soft Side, Wood Frame |
| Cost | $ |
| Difficulty | Beginner |
See Plans >

Sometimes you just really don’t need anything particularly fancy. At times like that, some spare PVC pipe, a little poly sheeting, and a bit of time will produce this greenhouse. Extremely simple in concept, this greenhouse has an X-shaped frame which can easily be placed into any garden bed. It only takes a few minutes to assemble, but the time spent will be worth it.
| Size | 4’ x 6’ |
| Type | Soft Wall, PVC Frame |
| Cost | $ |
| Difficulty | Beginner |
See Plans >

This is something which anyone who owns a tomato cage can build in just a few minutes. Suitable for most small plants, this greenhouse-like structure is great for anyone who doesn’t want a large structure in their yard and just needs to protect a few plants.
| Size | Variable |
| Type | Soft Side, Metal Frame |
| Cost | $ |
| Difficulty | Beginner |
See Plans >

While this is a commercial kit, the style itself is surprisingly easy to put together. For anyone with building experience, this should be a simple build, and you can reference the online manual for more information about the project including lumber dimensions. For beginners, there’s a kit available with all of the parts pre-cut and ready to assemble.
| Size | 8’ x 8’ |
| Type | Hard Wall, Wood Frame |
| Cost | $$$-$$$$$ (self-built vs kit price) |
| Difficulty | Advanced (self-built), or beginner (kit) |
See Plans >

Do you have an abundance of bamboo growing on your property, and want to get rid of some of it? Build a greenhouse from it! With this how-to guide, they offer you information on the build process as well as what tools you’ll need.
| Size | 8’ x 6’ |
| Type | Soft Wall, Bamboo Frame |
| Cost | $$ |
| Difficulty | Beginner to Intermediate |
See Plans >

This one reminds me of a chicken coop in how it’s designed. The interesting shape and size allows you to tuck this greenhouse along a garage or side wall easily. The top sits just underneath the eaves. It’s narrow, so doesn’t take up a lot of extra space, but gives you plenty of room for seedling-starting or young plant protection.
| Size | 8’ x 2’ |
| Type | Soft Side, Wood Frame |
| Cost | $$ |
| Difficulty | Beginner to Intermediate |
See Plans >

It’s boxy, it’ll fit on a table top or potting bench, and it will protect one larger plant or a whole seedling tray! While this greenhouse box isn’t anything elaborate, it’s certainly functional and surprisingly useful. If you have just a few small succulents that don’t like the winter weather, this might be perfect for them.
| Size | 1’ x 1’ (can be built larger as desired) |
| Type | Semi-Rigid Side, Wood Frame |
| Cost | $ |
| Difficulty | Beginner |
See Plans >

Named because it opens like a clam’s shell, this style of greenhouse is part cold frame, part greenhouse, and all awesome. Hoop-style construction makes it a very simple build. The plastic can be replaced in the spring with floating row covers to protect your plants from pests. When it’s no longer necessary, it can be removed entirely until it’s needed again! A perfect solution for those who have raised bed gardens.
| Size | 8’ x 4’ |
| Type | Soft Wall, PVC/Wood Frame |
| Cost | $-$$ |
| Difficulty | Beginner |
See Plans >

For people with a very small yard or a balcony space, this small windowpane-style greenhouse is the perfect choice. Mounted on a table base, it has a strong inner frame that supports the weight of the glass panels. And it looks adorable, too!
| Size | 2’ x 2’ |
| Type | Hard Wall, Wood Frame |
| Cost | $-$$ |
| Difficulty | Beginner |
See Plans >
If you’ve been unimpressed with the smaller greenhouse kits that can be stored when not in use, fear not. There’s an option here for you, too. When you don’t need it, this greenhouse can be folded up and put away in the garage until later.
| Size | 4’ x 4’ |
| Type | Soft Wall, Wood Frame |
| Cost | $$ |
| Difficulty | Beginner to Intermediate |
See Plans >

If you’ve got spare lumber in the yard, and a source for old windows, here’s a project you’ll enjoy. This lean-to style small greenhouse uses all sorts of shapes and sizes of windows to create a protected space for your plants. It’s a simple build as long as you’re patient enough to find what you need and puzzle out the spacing.
| Size | 8’ x 8’ |
| Type | Hard Wall, Wood Frame |
| Cost | $ |
| Difficulty | Beginner to Intermediate |
See Plans >

Can’t decide if you want a simple cold frame for your plants or a full-out greenhouse? Combine the two and make this raised tabletop greenhouse for your tender succulents. Placed on a table, your plants will be up out of the snow or mud, and the exterior provides ample warmth for the cold season.
| Size | 4’ x 2’ |
| Type | Hard Wall, Wood Frame |
| Cost | $$ |
| Difficulty | Intermediate |
See Plans >

Difference between this and other soft-walled greenhouses: it has vents planned in. Most greenhouses rely on having the door open to allow in airflow, or to allow out excess heat. This one has a beautiful vent panel built into the roof. It’s not a difficult build and will probably go up in one day!
| Size | 6’ x 8’ |
| Type | Soft Wall, Wood Frame |
| Cost | $$ |
| Difficulty | Beginner |
See Plans >

This takes a little familiarity with carpentry and glazing to provide, but if you have those skills, you can have a little pedestal greenhouse in no time at all. Charming visually, it’ll easily house a few prized plants during the cold months, and opens at the roof for ease of access.
| Size | 2.25’ x 1.5’ |
| Type | Hard Wall, Wood Frame |
| Cost | $-$$ |
| Difficulty | Intermediate |
See Plans >

While I personally wouldn’t use railroad ties as the basis of a raised bed (I’d use cinderblocks instead), it can be done. Line the interior of your bed with heavy plastic to prevent creosote contamination to the soil. Ensure there are drainage holes poked in the bottom, and then build this removable greenhouse overtop.
| Size | 8’ x 4’ |
| Type | Soft Side, Wood/Railroad Tie Frame |
| Cost | $$ |
| Difficulty | Beginner |
See Plans >

This adorable little cold frame/greenhouse style can be placed overtop plants in garden beds. It can also be put on a picnic table with your precious potted plants beneath. Small and portable, it’s a great option for a small-scale gardener with only a little to protect from winter’s chill.
| Size | 4’ x 4’ |
| Type | Soft Walls, Wood Frame |
| Cost | $$ |
| Difficulty | Beginner |
See Plans >

This thorough design shows you the shape and quantity of every connector and PVC pipe you’ll need to build the greenhouse. Further, it shows you some recommended cuts to make on the exterior greenhouse plastic. It’s a do it yourself small greenhouse with promise!
| Size | 6’ x 9’ |
| Type | Soft Walls, PVC Frame |
| Cost | $$ |
| Difficulty | Beginner |
See Plans >

I love the design of this particular greenhouse because it offers multiple ventilation sources, including one along the base. That floor vent will be great in warmer weather with a fan set up to blow cooler air inside! Made to be a year-round structure, it should work for you in all seasons.
| Size | 8’ x 8’ |
| Type | Soft Wall, Wood Frame |
| Cost | $$ |
| Difficulty | Beginner to Intermediate |
See Plans >

Just as the name implies, this small greenhouse is made of corrugated plastic and wood. With a gabled roof that provides good rain shedding ability, it’s a reasonably simple building project. There’s written instructions plus a good build video on this greenhouse to make life easier!
| Size | 8’ x 8’ |
| Type | Semi-Rigid Side, Wood Frame |
| Cost | $$$ |
| Difficulty | Beginner to Intermediate |
See Plans >

This one, while tiny, fascinates me for its combination of tech with something very simple: a hoop-house style greenhouse. But where the greenhouse itself is quite simple, the tech is anything but. This greenhouse will water your plants for you. It also monitors the internal temperature and makes sure that it’s not too cold or too hot inside. If you like tech gadgetry and want to incorporate it into your garden, check this one out!
| Size | 3’ x 3’ |
| Type | Soft Wall, PVC Frame |
| Cost | $$-$$$ |
| Difficulty | Intermediate to Advanced (for tech) |
See Plans >

This is probably the simplest and most basic greenhouse on the list. Using an old pallet, some scrap lumber, and some greenhouse plastic, this makes a rudimentary lean-to styled greenhouse. Because it’s built on a pallet base, your plants are slightly off the ground, although you could fill the pallet with soil for added warmth underneath.
| Size | Roughly 4’ by 3.2’ (pallet-sized) |
| Type | Soft Wall, Wood Frame |
| Cost | $ |
| Difficulty | Beginner |
See Plans >

Made from inexpensive polyethylene sheeting and a basic lean-to frame, this greenhouse will work quite adequately for most simple uses. If you want to increase the longevity, invest in higher quality greenhouse plastic!
| Size | 8’ x 6’ |
| Type | Soft Wall, Wood Frame |
| Cost | $$ |
| Difficulty | Beginner |
See Plans >

This is a visually-stunning greenhouse. Unusual in that it’s an octagonal tubular structure, it has semi-rigid walls and a sloped roof with cupola vent. While it takes some carpentry skill to build, it’s well worth the time spent and will provide you with a permanent greenhouse that looks great in the yard.
| Size | Less than 10’ (Exact size unavailable) |
| Type | Semi-Rigid Side, Wood Frame |
| Cost | $$$ |
| Difficulty | Advanced |
See Plans >

This uses standard cling-film instead of greenhouse plastic, with all of the wooden frame pre-wrapped in film before assembly. This enables the cling film to secure to the frame more tightly. In addition, you can pre-wrap each wall segment to make a double-layered wall panel before attaching them together, adding another layer of warmth retention.
| Size | 9’ x 9’ |
| Type | Soft Wall, Wood Frame |
| Cost | $-$$ |
| Difficulty | Beginner to Intermediate |
See Plans >

With roofing side panels, a wooden frame, and semi-rigid corrugated plastic sheeting for the roof and upper walls, this greenhouse is a delight. Designed to hold up to the elements, it’s also stylish visually. It’ll do a fantastic job at offering plenty of light while keeping the chill off your plants, although you may have to add heating if you’re in a particularly cold environment.
| Size | 12’ x 11.5’ |
| Type | Hard Wall, Wood Frame |
| Cost | $$-$$$ |
| Difficulty | Intermediate to Advanced |
See Plans >

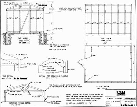
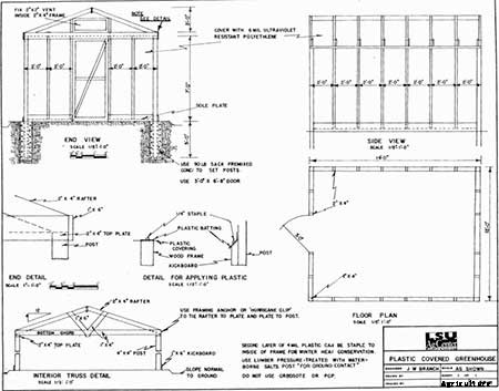
This greenhouse is designed to be built with soft plastic walls, but could be upgraded to hard poly sheets without much difficulty. One of its best features is the vent line along its top ridgeline. Excess heat can easily escape through there, maintaining a reasonable temperature inside. The sturdy frame ensures this greenhouse will last and last!
| Size | 10’ x 8’ |
| Type | Soft/Hard Wall, Wood Frame |
| Cost | $$-$$$ |
| Difficulty | Intermediate |
See Plans >

Want a greenhouse, but the door to your garage, basement, or other location would be blocked by it? Turn your greenhouse into a portal to your yard, instead! With a little planning, you can have a walk-through greenhouse that sits right up against your outside door and houses your plants. Even better, you don’t have to go out in the cold to water them during the winter!
| Size | 10’ x 6.5’ |
| Type | Soft Wall, Wood Frame |
| Cost | $$ |
| Difficulty | Beginner to Intermediate |
See Plans >

Your kids have destroyed the trampoline, but now you have a massive frame taking up valuable yard space. What do you do with it? Turn it into the basis for a new greenhouse, of course! With a little bit of creativity, your garbage quickly becomes your garden’s winter safehouse.
| Size | 10’ x 8’ |
| Type | Soft Wall, Wood & Metal Frame |
| Cost | $ |
| Difficulty | Beginner |
See Plans >

You’ll need a little welding skill to create the parts for this greenhouse, but if you do, its steel and wood frame will ensure you never have to build another greenhouse again. This greenhouse is on the larger side of medium, although it can be sized down with a little work. Its interesting shape provides a much higher side profile, making it easier to reach spaces along the side walls.
| Size | Roughly 10-11’ diameter |
| Type | Soft Wall, Steel/Wood Frame |
| Cost | $$$-$$$$ |
| Difficulty | Advanced |
See Plans >

This greenhouse is light enough that it can be easily moved, although not as lightweight as some of the PVC models. It’s a good size, and its shape enables the owner to move around comfortably without ducking down to avoid the roof plastic.
| Size | 12’ x 8.5’ |
| Type | Soft Wall, Wood Frame |
| Cost | $$ |
| Difficulty | Intermediate |
See Plans >

If you need something on the large side of medium, this PVC pipe frame secures to a wooden footer. The square shape makes it quite roomy and easily usable for bunches of growth. It’d even be effective for home hydroponics uses.
| Size | 12’ x 12’ |
| Type | Soft Wall, PVC Frame |
| Cost | $$ |
| Difficulty | Beginner |
See Plans >
Wide enough to be quite comfortable to move around in, but not to take up the entire back yard, this greenhouse is perfect for the semi-pro hobbyist. While it’s intended for using polyethylene sheeting, you can actually attach semi-rigid fiberglass to it as well, giving it more protection from snow or ice. It’s designed much like the temporary carport structures you can buy, just with greenhouse plastic overtop.
| Size | 9’ x 12’ |
| Type | Soft Wall, PVC Frame |
| Cost | $$ |
| Difficulty | Beginner |
See Plans >

This fat rectangle offers an abundance of growing space. Designed to be a permanent structure, its support frame is sunk into the ground with concrete footing. Heavy-duty design means that this greenhouse will be around for many years to come.
| Size | 12’ x 14’ |
| Type | Soft Wall, Wood Frame |
| Cost | $$$ |
| Difficulty | Intermediate |
See Plans >

Got old pallets lying around, or a good supply of them? With this project, you can take old pallets and poly sheeting and upcycle them into a surprisingly good, functional greenhouse. There’s a video available as well as a basic walkthrough on the site.
| Size | 6’ x 10’ |
| Type | Soft Side, Pallet Frame |
| Cost | $ |
| Difficulty | Beginner to Intermediate |
See Plans >

Old windows from Habitat for Humanity stores or leftovers after home renovation don’t need to be disposed of. They need to be repurposed into the perfect greenhouse! While it might take you a bit to find the windows you really need, you too can build this 8’ x 10’ greenhouse on a budget using old window frames and panes.
| Size | 8’ x 10’ |
| Type | Hard Wall, Wood Framing |
| Cost | $-$$ |
| Difficulty | Beginner to Intermediate |
See Plans >

This barn-shaped greenhouse has some ventilation planned out, as well as a really nice exterior shape. Neither too large nor too small, it’s a great style for someone who wants a mid-sized greenhouse that looks good but is functional and sturdy.
| Size | 10’ x 12’ |
| Type | Soft Wall, Wood Frame |
| Cost | $$ |
| Difficulty | Beginner |
See Plans >

Sometimes, you don’t need much more than a box to safeguard your plants. In this flat-topped greenhouse, plenty of sunlight can get in while the chill stays out. Be forewarned that if you have heavy rain or snow conditions, this may not be your best choice. But for a southern California cool-weather option, this is perfect.
| Size | 10’ x 6’ |
| Type | Soft Wall, Wood Frame |
| Cost | $ |
| Difficulty | Beginner |
See Plans >

Want something that will literally stand up to any weather? This fiberglass-shell, wood-framed greenhouse will do it. It utilizes pressure-treated wood for longevity in any moisture conditions and to prevent against rot and insects.
| Size | 8’ x 8’ |
| Type | Hard Wall, Wood Frame |
| Cost | $$$ |
| Difficulty | Beginner to Intermediate |
See Plans >

Can’t decide between a greenhouse or a guesthouse? Why not something that could be used for both? This unusual structure can be built with acrylic paneling or window glass to be a fully functioning greenhouse. It also makes a great plan for a tiny house in the back yard for your guests. Regardless of which way you go with it, it’s worth considering!
| Size | 10’ x 12’ |
| Type | Hard Wall, Wood Frame |
| Cost | $$$-$$$$ |
| Difficulty | Intermediate to Advanced |
See Plans >

This wood-frame greenhouse provides the option to open up the roof panels for ventilation purposes. A good size for most long and narrow yards, it will keep your plants shielded from the weather with a sharply-sloped roof and thick plastic sheeting.
| Size | 5’ x 10’ |
| Type | Soft Wall, Wood Frame |
| Cost | $$ |
| Difficulty | Beginner |
See Plans >

Neither overly large nor overly small, this narrow-top, wide base greenhouse has an interesting shape. With some shelves added along the sides, you should be able to have multiple levels of plants exposed to the sunlight.
| Size | 7’ x 10’ |
| Type | Soft Wall, Wood Frame |
| Cost | $$ |
| Difficulty | Beginner |
See Plans >

Solid wood framing forms a really nicely-shaped greenhouse in this design. While not elaborate, it will certainly do its job! A tall peaked roof provides ample headroom, even for taller users.
| Size | 6’ x 10’ |
| Type | Soft Wall, Wood Frame |
| Cost | $$ |
| Difficulty | Beginner |
See Plans >

Simple A-frame construction makes this a super-easy build. The triangular shape provides ease of rainshed while protecting fragile plants within. It’s designed to set in place right over a garden bed!
| Size | 5’ x 10’ |
| Type | Soft Walls, PVC Frame |
| Cost | $ |
| Difficulty | Beginner |
See Plans >

Slightly different PVC configuration makes this design worth mentioning as well. In this style, it’s not a true A-frame as there’s a peaked roof area lifted off the ground by poles. Still, it’s close enough to merit the name. Depending on what PVC parts you have in your workshop, either A-frame design will do!
| Size | 5’ x 10’ |
| Type | Soft Walls, PVC Frame |
| Cost | $ |
| Difficulty | Beginner |
See Plans >

Very basic plans for a simple 8’ x 10’ greenhouse structure are provided here. A gabled roof helps to disperse rainwater while the soft-wall sides repel the cold. You can add vent panels on the rooftop if you so choose by securing them in place at the peak.
| Size | 8’ x 10’ |
| Type | Soft Walls, Wood Frame |
| Cost | $$ |
| Difficulty | Beginner |
See Plans >

Built to handle Canadian snow depths, this greenhouse has a particularly pointed shape designed to shed snow fast. It’s a large, squared-off structure which will easily house an abundance of plant life and keep it safe from the cold weather.
| Size | 12’ x 12’ |
| Type | Soft Side, Wood Frame |
| Cost | $$ |
| Difficulty | Beginner to Intermediate |
See Plans >

Long and skinny, this greenhouse is almost more of an enclosed shelf for your plants than what most would consider a greenhouse. If you have a south-facing wall to take advantage of the winter sun, this can provide you plenty of plant space in a very small footprint.
| Size | 12’ x 2’ |
| Type | Soft Wall, PVC Frame |
| Cost | $-$$ |
| Difficulty | Beginner |
See Plans >
This video walkthrough takes you step-by-step through the construction of a wood-frame greenhouse. Our link takes you to the first in his series. It’s a good, solid greenhouse, and a great video for people who’re trying to learn the process from a firsthand source.
| Size | 12’ x 10’ |
| Type | Semi-Rigid Side, Wood Frame |
| Cost | $$$ |
| Difficulty | Intermediate |

This is a very sturdy greenhouse, especially if you buy a thick greenhouse plastic for it. Large enough to start your entire garden, this framework enables you to use it year after year. While you will inevitably have to replace your exterior plastic, it’s a simple matter of stapling new sheeting in place.
| Size | 16’ x 10’ |
| Type | Soft Wall, Wood Frame |
| Cost | $$ |
| Difficulty | Intermediate |
See Plans >

While building a hoop house is a pretty standard procedure, this DIY PVC greenhouse is a great addition to any large garden. I do mean large, however – it’s a massive 32 feet long! The plans could be scaled down once you’ve read through this tutorial to see how it’s done.
| Size | 32’ x 12’ |
| Type | Soft Wall, PVC Frame |
| Cost | $$ |
| Difficulty | Beginner |
See Plans >

Feel like scrounging some materials that are leftover from your local construction site (with permission, of course)? You may be able to build this greenhouse for less than $100 if you do! This style doesn’t use a permanent bottom frame, because you attach the base wood to the sheeting before adding it. All things considered, these plans are great for a first-timer.
| Size | 15’ x 18’ |
| Type | Soft Wall, PVC Frame |
| Cost | $-$$ |
| Difficulty | Beginner |
See Plans >

If you’ve got a lot of space available, why not go for a structure that will truly handle all conditions? Geodesic domes are known for their wind resistance, and the heavy framework can be used with either soft greenhouse film or sturdy poly paneling.
| Size | 18’ diameter (circular) |
| Type | Soft/Hard Wall, Wood Frame |
| Cost | $$-$$$ |
| Difficulty | Advanced |
See Plans >

Did you have your windows replaced in your home recently? Know a place to find reclaimed doors from old homes? This French window greenhouse offers you the benefit of reusing those old French doors or window panels to create a functional and quite pretty greenhouse. While it takes a bit of planning to lay it out perfectly, you will end up with a beautiful, useful garden structure when it’s complete.
| Size | 10’ x 14’ |
| Type | Hard Wall, Wood Frame |
| Cost | $ |
| Difficulty | Beginner to Intermediate |
See Plans >

Do you have tons and tons of space and want something virtually indestructible? This PVC pipe frame greenhouse allows you to use conduit pipe, either PVC or metal, to build yourself a long greenhouse. Suitable for small farms or big yards, this greenhouse has an abundance of room for everything you could possibly need.
| Size | 48’ x 9.6’ |
| Type | Soft Wall, PVC/Wood Frame |
| Cost | $$-$$$ |
| Difficulty | Intermediate |
See Plans >

The trussed rafter resembles scissor blades, giving this greenhouse its name. In reality, it’s a monstrously big greenhouse, suitable for commercial use. A heavy-duty wooden frame holds dense, thick poly sheeting. You can build ventilation into the walls or ends of the greenhouse as needed. The interior is incredibly roomy, capable of holding hundreds of plants both large and small.
| Size | 21’ x 40’ |
| Type | Soft Wall, Wood Frame |
| Cost | $$$ |
| Difficulty | Intermediate |
See Plans >

The gothic rafter on this greenhouse helps to ensure it sheds rain without the slightest difficulty. A sharp peak at the top curls downward to rounded shoulders, leading down to the sides. This is another massive greenhouse suited for commercial or farm use, or for people who’re trying to develop the perfect grow tent for environmental control.
| Size | 21’ x 40’ |
| Type | Soft Side, Wood Frame |
| Cost | $$$ |
| Difficulty | Intermediate |
See Plans >

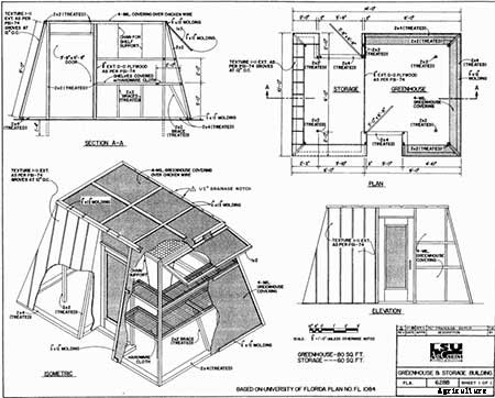
If you’re in need of a shed and a greenhouse, you’re in luck! This combines both into one functional outbuilding that will house your tools while it shelters your greenery. You’ll have plenty of space for buckets of compost or bags of potting soil, perhaps even room for a small potting bench in the storage side. In the greenhouse side, which is soft-sided, plenty of light will reach your plants.
| Size | 10’ x 14’ |
| Type | Soft/Hard Side, Wood Frame |
| Cost | $$$ |
| Difficulty | Intermediate |
See Plans >

This sturdily-constructed wooden frame greenhouse can stand up to some hard weather. Its sloped roof allows snow or rain to slide right off. Crossbeams provide extra strength and support to the poly sheeting walls, keeping the wind from penetrating easily. Sizeable enough to hold a few greenhouse benches, this should keep your plants warm and safe from the wintry chill.
| Size | 12’ x 17’ |
| Type | Soft Side, Wood Frame |
| Cost | $$ |
| Difficulty | Intermediate |
See Plans >

When I said long, I meant really, really long. This massive polytunnel enables you to do full farm-style growing in a carefully-maintained environment. You’ll be able to handle even young sapling trees inside this greenhouse. It’s perfect for the aspiring arborist or the farm-to-store grower alike.
| Size | 25’ x 96’ |
| Type | Soft Side, Metal Pipe |
| Cost | $$$ |
| Difficulty | Advanced |
See Plans >

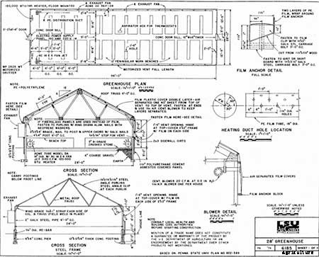
By 28 foot, I mean 28 foot wide. This is definitely a commercial-sized structure at 96 feet in length! If you are in need of an immense greenhouse, this should be perfect. This would also make an excellent hydrofarm setup. You can also use fiberglass panels instead of poly sheeting to make it a rigid structure.
| Size | 28’ x 96’ |
| Type | Soft/Hard Side, Wood Frame |
| Cost | $$$$ |
| Difficulty | Intermediate to Advanced |
See Plans >

If you need a big greenhouse, but you’re not sure how big you need, these plans can be extended to double the length quite easily. Wood frame construction is a breeze with a little skill and these detailed plans.
| Size | 24’ x 48’, can be extended to 96’ |
| Type | Soft Side, Wood Frame |
| Cost | $$$-$$$$ |
| Difficulty | Intermediate to Advanced |
See Plans >

With double the PVC pipes on the side walls to form a rigid lower frame, this polytunnel-like structure is a large but effective option. Anywhere where wind is a concern would benefit from this design! Its squared-off shape makes it useful in a large back yard as a greenhouse for your hydro-farm.
| Size | 16’ x 16’ |
| Type | Soft Wall, PVC Frame |
| Cost | $$ |
| Difficulty | Beginner |
See Plans >

Longer than it is wide, this greenhouse has extremely sturdy foundations. Sunk posts in concrete footings provide great stability in wind and rain. While this frame is intended for walls of greenhouse plastic, you can also use fiberglass panels to create a rigid exterior.
| Size | 10’ x 16’ |
| Type | Soft Wall, Wood Frame |
| Cost | $$-$$$ |
| Difficulty | Intermediate |
See Plans >

Control your greenhouse temperature with the soil itself. This flue-heated greenhouse is half-buried in the ground, allowing for plenty of light through its roof but keeping most pests and diseases out. Because of its design, it can stay cool in the summer or warm in the winter.
| Size | 18.5’ x 10’ |
| Type | Buried Walls, Rigid Roof, Wood Frame |
| Cost | $$$ |
| Difficulty | Advanced |
See Plans >

Truly commercial in scope, this climate-controlled greenhouse is designed in such a way that it includes internal plant beds, a heating and ventilation system, and 3000 square feet of space. This is only for the most experienced, although it would make a great addition to a farm setup.
| Size | 3000 square feet (massive) |
| Type | Soft/Semi-Rigid/Hard Wall, Frame Variable |
| Cost | $$$$$ |
| Difficulty | Advanced |
See Plans >

If you need about 300 square feet of space, and you live in the desert or on a hill where the wind blows hard, this is fantastic. Hoophouse-style, the design of this greenhouse is reinforced by extra arches spaced closer together than in most styles. They’re secured in place and unable to separate to allow for the wind to catch the plastic cover.
| Size | 24’ x 12’ |
| Type | Soft Wall, PVC Frame |
| Cost | $$ |
| Difficulty | Beginner |
See Plans >

Large and designed in a way to keep critters from burrowing into your safe space, this greenhouse is well-sealed and protective. Mesh panels keep rodents from invading, and poly walls offer good light as well as weather protection.
| Size | 10’ x 32’ |
| Type | Soft Wall, PVC Frame |
| Cost | $$$ |
| Difficulty | Intermediate |
See Plans >

With built-in vent panels on the front and back, you can easily install heaters or fans to keep the air inside from going too humid. This hoop-style greenhouse may not look fancy, but it does its job surprisingly well.
| Size | 10’ x 20’ |
| Type | Soft Wall, Wood Frame |
| Cost | $-$$ |
| Difficulty | Beginner |
See Plans >

Intended to lean up against a long wall of your house or garage, this greenhouse is constructed of a nice wooden frame and poly sheeting. It’s simple to construct, and should easily hold up to most weather conditions thanks to its angled roof. You may wish to add some form of sealant between the house and the greenhouse to keep moisture from sneaking in along the wall.
| Size | 16’ x 9’ |
| Type | Soft Wall, Wood Frame |
| Cost | $$ |
| Difficulty | Beginner |
See Plans >

In spring and summer, the cattle panels provide trellises and a place to drop a shadecloth. In the fall, once you’ve trimmed back the dead climbing plants, you can add plastic sheeting to turn this long hoop house into a true greenhouse, reinforced by steel mesh panels.
| Size | 7’ x 21’ |
| Type | Semi-Rigid Sides, Metal Framing |
| Cost | $$$ |
| Difficulty | Intermediate |
See Plans >

Need a big geodesic dome? Depending on what components you opt to use, you can have one which might survive a nuclear blast or one which should at least survive the winter. This process teaches you how to do one from scratch with wood rails and homemade vertices.
| Size | 20’ diameter |
| Type | Soft Side, Wood Frame |
| Cost | $$ |
| Difficulty | Advanced |
See Plans >

I really love this reuse project. Using discarded acrylic sheets (after some serious cleanup work) and old beams from a slowly-deteriorating pergola, this builder developed a large and beautiful structure. Not only does it look fantastic in his garden, it does wonders for his plants.
| Size | 16.5’ x 13’ |
| Type | Hard Wall, Wood Frame |
| Cost | $ |
| Difficulty | Intermediate |
See Plans >

Packed with support structures, this large greenhouse can hold up to the weight of a snowy Canadian winter with no problem. Surprisingly enough, it’s not sided with hard plastic, but with greenhouse film! This is a rigid structure that can take on the coldest of winters with no problem.
| Size | 25’ x 15’ |
| Type | Soft Wall, Wood Frame |
| Cost | $$$ |
| Difficulty | Intermediate |
See Plans >

This miniature greenhouse is made out of old storm windows! Since storm windows vary in size, you will need to adjust the design to fit with the shape of your windows. However, it makes for an incredibly effective greenhouse design. You might even be able to find double-paned windows for extra warmth for your plants!
| Size | Variable – depends on window size |
| Type | Hard Wall, Wood Frame |
| Cost | $ |
| Difficulty | Beginner |
See Plans >

If you’ve got a bunch of old windows sitting around, why not put them to work for you as a greenhouse? While this one also depends on the size of your windows, it’s very easy to combine together multiple old windowpanes to build a functioning and solid-wall structure. You may need some extra lumber to fill in gaps, but otherwise it’s like putting together a puzzle.
| Size | Varies by window size/configuration |
| Type | Hard Wall, Wood Frame |
| Cost | $ |
| Difficulty | Beginner |
See Plans >

Do you have a never-ending mountain of plastic water bottles? Want to be eco-friendly? Build yourself a greenhouse from them! While this takes some serious planning, and you need to save your bottles for a while, it’s a fun project to take on. Best of all, you’re keeping waste out of the landfill while creating your structure.
| Size | Varies depending on style |
| Type | Semi-rigid Wall, Variable Frame |
| Cost | $ |
| Difficulty | Beginner to intermediate |
See Plans >

If you had considered simply making an addition to your house that could act as a greenhouse, you’re not alone. This solarium offers plenty of light for your plants, but also includes a roll-down shade option. While these plans don’t provide size, they do give an excellent concept of how to construct your own permanent solarium addition to your residence.
| Size | Variable |
| Type | Hard Wall, Wood Frame |
| Cost | $$$-$$$$ |
| Difficulty | Intermediate to Advanced |
See Plans >

Constructed of either PVC or wood frame, with tightly-wrapped poly sheeting, this temporary greenhouse is easy to build. It takes very little effort to plan out the exact specs for your space. Meant to lean up against a wall for support, you can add extra stability with a few clamps secured to the wall.
| Size | Variable |
| Type | Soft Wall, PVC/Wood Frame |
| Cost | $$ |
| Difficulty | Beginner |
See Plans >
Are you an arborist trying to figure out how to shelter your fruit trees? Perhaps you are a gardener with large rosebushes that do poorly in the wintry chill. In either case, there’s been a solution which has been around for far longer than the greenhouse: a fruit wall. With this informative piece, you can learn all about the history of the fruit wall, how it was used, and how it might work in your yard today.
| Size | Variable |
| Type | Variable |
| Cost | $-$$$$$ |
| Difficulty | Beginner to Advanced |
See Plans >

This site will show you how to build anything from a 6’ wide low-arch greenhouse to a 24’ wide high-arch greenhouse. With a metal frame that’ll hold its own against the wind and weather, all you need to add is some high-quality greenhouse plastic and you’re ready to go!
| Size | Variable |
| Type | Soft Wall, Metal Frame |
| Cost | $$$ |
| Difficulty | Intermediate |
See Plans >

I love the design of this. Using some lightweight wood for supports, the majority of this greenhouse is constructed of a rigid plastic and cable ties. The wood is really only there to just keep it from moving around! It can be built in virtually any configuration or size you need simply by changing the size of the triangular segments.
| Size | Variable |
| Type | Hard Wall, Plastic/Wood Frame |
| Cost | $$ |
| Difficulty | Beginner to Intermediate |
See Plans >

Are you a super-recycler? Not only could this be used to build a greenhouse, but it would make good small shed plans as well. Using a wood frame that’s been filled with hundreds of glass jars, you can build a functional and surprisingly pretty greenhouse. You can even tile the floor with the jar lids!
| Size | Variable depending on need |
| Type | Hard Wall, Wood Frame |
| Cost | $ |
| Difficulty | Beginner to Intermediate |
See Plans >

Did the vinyl cover from that old carport finally rot off? Put the pipes to use to build a greenhouse instead. This design uses one of the segments from a longer carport with a wooden frame built to add rigidity, but you can make it longer if you want to use the entire carport. The style offers tons of space above in case you want to hang grow lights or add heater units.
| Size | Variable depending on carport |
| Type | Soft Side, Metal/Wood Frame |
| Cost | $-$$ |
| Difficulty | Beginner |
See Plans >
If you’ve ever wanted a pyramid-shaped greenhouse, this video will show you how to install heavy greenhouse plastic to the frame. You can either develop the plans for the frame yourself, or purchase a bracket kit from the video’s maker. It can be any size you require, and the exact dimensions will vary depending on what you choose.
| Size | Variable |
| Type | Soft Wall, Wood Frame |
| Cost | $$-$$$ |
| Difficulty | Beginner |
Instant greenhouse, just add… pallet wrap? Yes, that’s right, this is just a very rudimentary framework with a heavy plastic sheeting top and pallet wrapped sides. Surprisingly, it holds up to the wind and weather rather well. While I don’t recommend making your structure 10’ tall as these folks did, you can get a very effective greenhouse for not much money.
| Size | Variable |
| Type | Soft Side, Wood Frame |
| Cost | $ |
| Difficulty | Beginner |

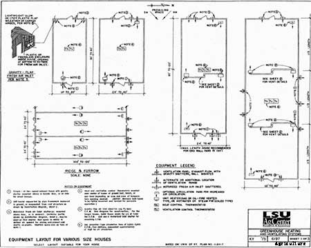
No, this isn’t a greenhouse itself — but it’s very much required, especially for people in areas that get hotter or colder weather. These detailed plans offer you much-needed solutions for airflow management and warmth management. If you’re aiming for a fully-controlled environment, this will be invaluable for you.
| Size | Variable |
| Type | Heating/Ventilation Systems |
| Cost | $$-$$$ |
| Difficulty | Intermediate to Advanced |
See Plans >

Also not greenhouse plans, but these plans for a wide spectrum of greenhouse benches will be perfect for your setup. Whether multi-tiered or single-layer, you’ll find something that will work perfectly for you here. Transite, wood, even welded wire fabric is used to create the top surface, and you’ll find a variety of leg options as well as a step-bench arrangement.
| Size | Variable |
| Type | Greenhouse Benches |
| Cost | $$-$$$ |
| Difficulty | Intermediate |
See Plans >
pic
These 8×8 greenhouse plans come with information that can be applied to virtually any other greenhouse to add a solar soil-warmer system. Very little is offered in terms of the greenhouse plans, so I consider this to be plans for the soil warming system.
| Size | 8’ x 8’ |
| Type | Soft Side, Wood Frame |
| Cost | $$ |
| Difficulty | Beginner to Intermediate |
See Plans >
As you can see, there’s greenhouse plans for everyone, no matter their skill level. Whether you want to get into urban farming or just need something small to protect your succulents, there’s something for you! What’s your favorite greenhouse from this list? Have you built any of these? Let me know in the comments below.